PROJEKT | Haus Lois

KATEGORIE | Architecture

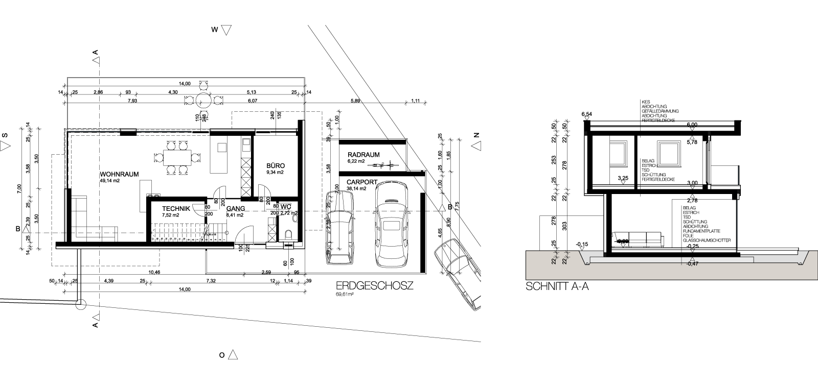
Haus Lois
Wohnhaus Klagenfurt

Klare Linien, kubistische Formen und eine nach Süden hin geöffnete Glasfront: Modernes Wohnen im nahtlosen Übergang zur Natur, Architektur als Statement des harmonischen Einklangs. Eine massive Ziegelkonstruktion samt Flachdach, die sich eine beruhigende Offenheit bewahrt.

Privatsphäre, Zuflucht und Weitsicht – Vieles ist möglich, wenn sich Bauherr:in und Baumeister:in gegenseitig Vertrauen schenken; wenn der Wunsch des Einen in der Vision des Anderen aufgeht. Jedem erfolgreichen Projekt liegen gute Kommunikation und Verständigung zugrunde.